



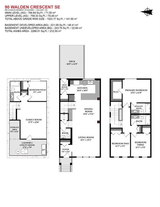
CHECK THIS ONE OUT! | JAYMAN BUILT | 4 BEDROOMS | FINISHED BASEMENT | 3.5 BATHS | AIR CONDITIONED | 2288+ SQ FT OF LIVING SPACE This best-selling model, custom-built by the original owners, offers timeless style, modern upgrades, and a highly functional layout for todays busy families. Set on a traditional lot (not zero-lot line) and located on a family-friendly str...

